BIFAMILIARE in Vendita a Mogliano Veneto
Classe energetica
EP glnr: 5.00 kwh/m²
ABITARE - Qualità senza tempo della casa d'autore.
In Vendita a Mogliano Veneto, quartiere centro sud, villa abbinata su due livelli con giardino.
Vendita diretta dal costruttore senza costi intermediazione agenzia. Rif.to GZ103.
A 300 metri dalla Piazza dei Caduti, nel quartiere più ambito, si propone in Vendita una porzione di villa di nuova costruzione. Rara occasione per acquistare una meravigliosa abitazione totalmente indipendente in centro a Mogliano. Vivere vicinissimo al cuore del paese ma con facilità di spostamenti, in auto oppure in bicicletta. Tutti i servizi si trovano nel raggio di 5-10 minuti a piedi.
La posizione è davvero unica, e il progetto, con una distribuzione degli spazi interni favolosa, con una luminosità incredibile ed un'estetica architettonica di design, ha caratteristiche tali da poter affermare che si tratti della migliore nuova abitazione ora in Vendita in centro a Mogliano, con un rapporto qualità-spazi-prezzo eccellente.
L’obiettivo è stato quello di realizzare un'abitazione da sogno, con spazi adeguati alle esigenze e al benessere delle famiglie, utilizzando le tecniche costruttive più attuali, materiali di alta qualità, impianti innovativi che garantiranno un notevole risparmio energetico. Certificazione energetica in classe A4, Certificazione acustica in classe 1. Finiture di pregio personalizzabili secondo il gusto e l'esigenza del cliente.
Sisma Bonus Acquisti: Essendo l’intervento, una demolizione e ricostruzione con ampliamento, l’acquisto di questo immobile garantisce il diritto di beneficiare della detrazione fiscale “Sisma Bonus Acquisti” alle condizioni vigenti al momento del rogito.
Misure in metri quadri:
Totale Commerciali = 312.83
Totale Calpestabili = 230.73
Calpestabili p.terra interni = 88.56 + 33.20 Garage doppio parallelo. Totale 121.76
Calpestabili p.terra esterni = 13.84 magazzino + 15.00 portico.
Calpestabili p.primo interni = 94.87
Calpestabili p.primo esterni = 16.75 due terrazze-logge
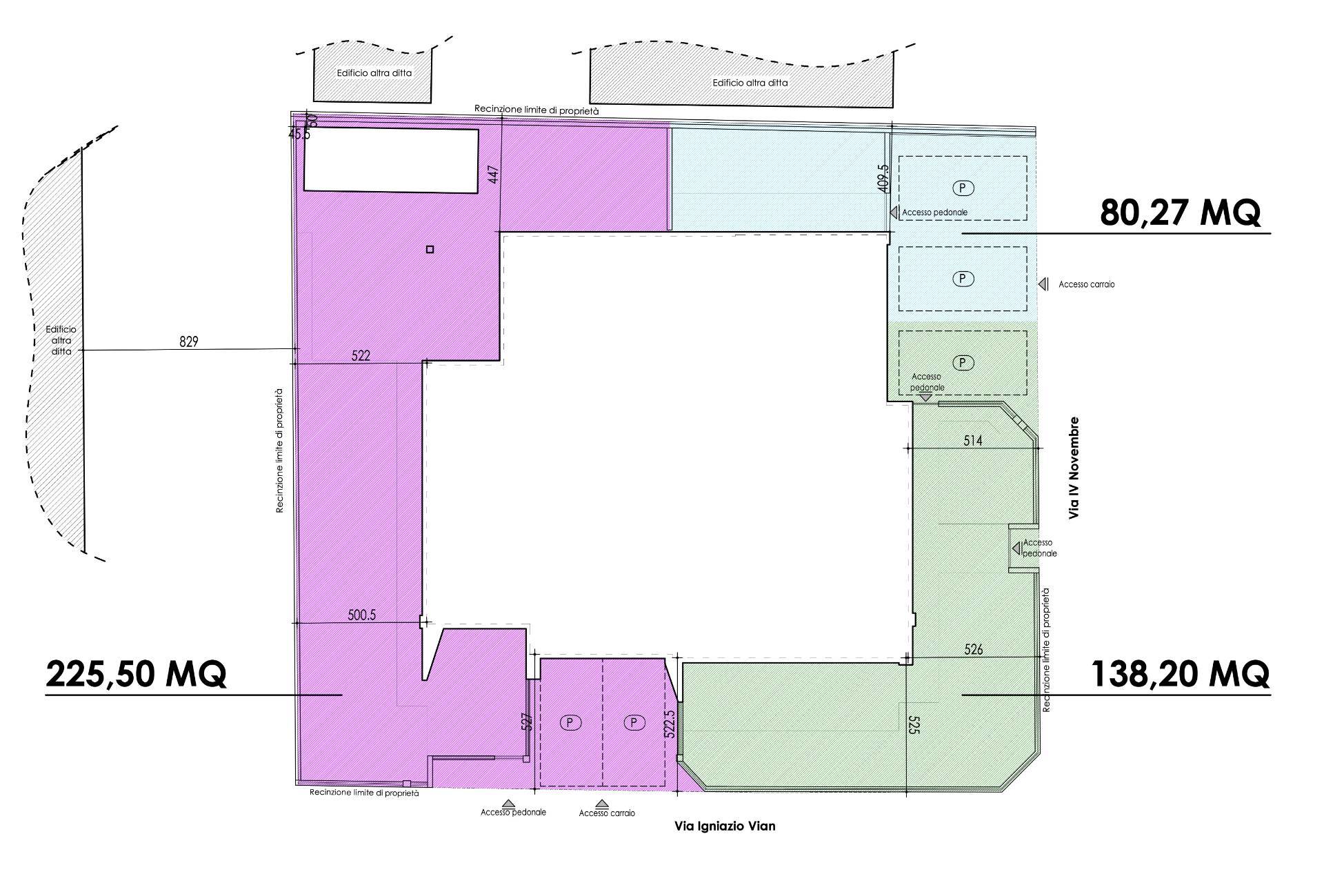
Scoperto privato = 225,50
CAPITOLATO
Per leggere al completo l'elenco delle dotazioni da capitolato consultare gli annunci direttamente dal nostro sito web Abitare Real.
Dotazioni principali da capitolato:
• Classe Energetica A4 per il risparmio energetico
• Classe Acustica 1-2 per una vera privacy (Norma di Legge = Classe 3)
• Fabbricato realizzato al 100% in cemento armato: solai e pareti. Nessun laterizio.
• Sistema isolamento termico a cappotto da 16 cm di spessore
• Sistema isolamento termoacustico interno in cartongesso doppia lastra totalmente coibentato con lana minerale
• Pompa di calore ad alta efficienza caldo/freddo Mitsubishi (Ecodan)
• Impianto fotovoltaico autonomo da 7.2kW (espandibile)
• Riscaldamento a pavimento
• Aria condizionata multisplit Mitsubishi in ogni stanza (6 split)
• VMC Integrale in ogni stanza
• Allarme perimetrale e volumetrico (incluso garage, portico e terrazze)
• Video sorveglianza perimetrale (5 telecamere)
• Infissi in PVC fuso rinforzato spessore 85mm color bianco con doppio vetrocamera
• Avvolgibili motorizzati in alluminio coibentato ad alta densità
• Zanzariere
• Rivestimento esterno autoventilante in legno Twix-Decò color rovere in loggia a sud.
• Antenna TV e Rete W-LAN Ethernet in ogni camera e zona giorno
• Videocitofono a colori
• Porte interne laccate bianche lisce
• Portone ingresso rivestito in legno Twix-Decò color rovere
• Pavimenti zona giorno in gres porcellanato/listoni legno vari colori e formati
• Pavimenti camere in listoni legno vari colori
• Pavimenti terrazze in gres porcellanato flottante
• Rivestimenti bagni in gres porcellanato vari colori e formati
• Garage doppio parallelo con basculante coibentato, motorizzato e comandato a distanza
• 2 Posti auto privati esterni
• Luci esterne di cortesia e di sicurezza a led
E' possibile prenderne visione direttamente in cantiere. Consegna a 4 mesi dal preliminare.
Informazioni dettagliate previo appuntamento con il costruttore.
Contattaci
ABITARE REAL
Piazza G.Gambino 3/13
Preganziol (TV)
Telefono 0422523127
Cellulare 3456674969
info@abitarereal.com
Immobili simili
Ultimo aggiornamento 26-10-2025














































