Villette a schiera in Vendita a Scorzè
Zona: Gardigiano
Classe energetica
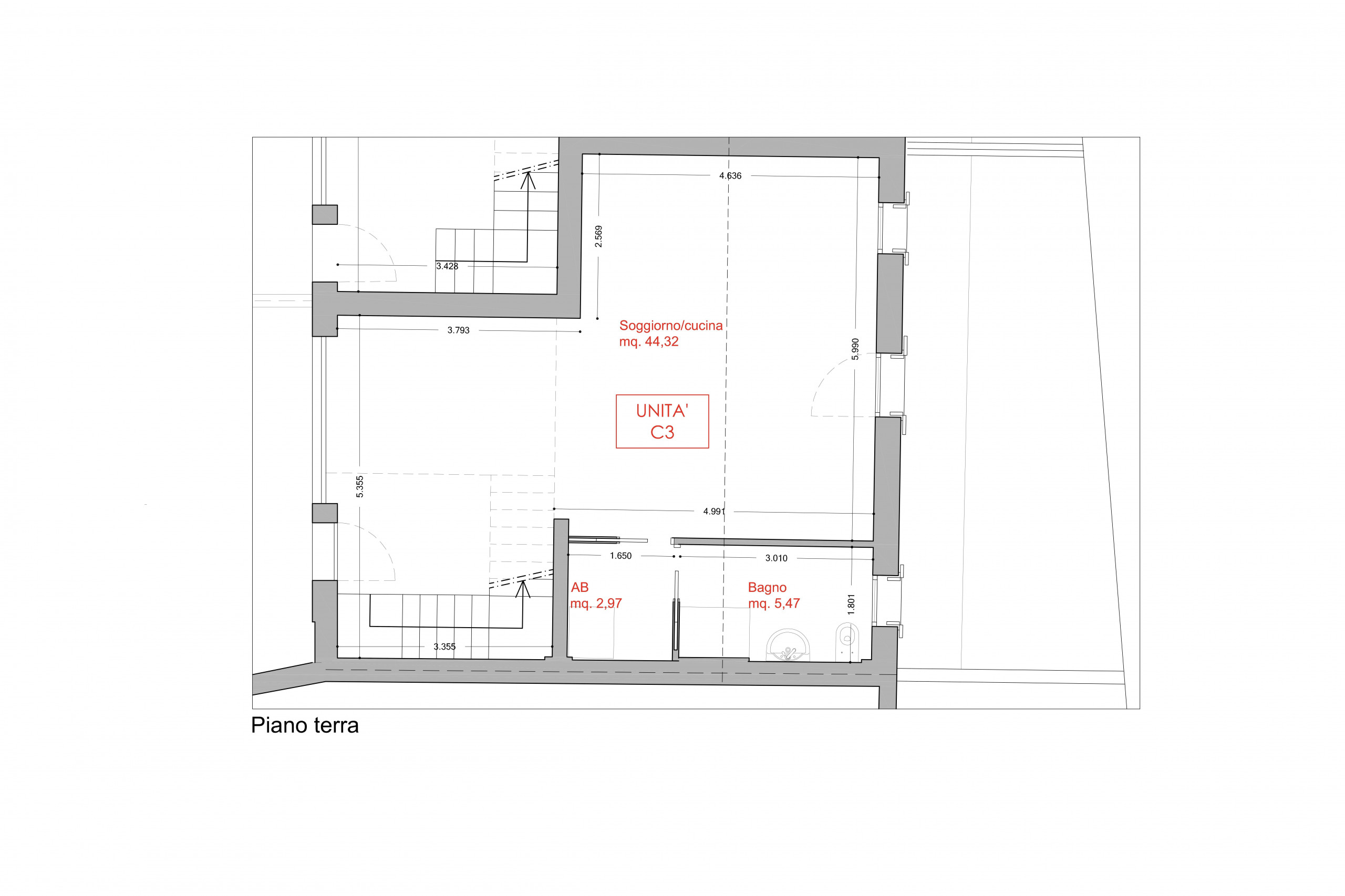
In Vendita a Gardigiano via moglianese nuove case a schiera in classe A4 su 2 livelli con giardino
Consegna prevista per Giugno 2026, Mq commerciali 132,Mq Calpestabili Interni 98, Magazzino Esterno 14 mq. e, 2 posti auto
Ubicato in un area residenziale a poca distanza dal centro di Gardigiano in ottimo contesto paesaggistico, in posizione strategica per raggiungere facilmente il centro e tutti i principali servizi e le vie di comunicazione, proponiamo in Vendita di ultima generazione e dal design esclusivo, in classe Energetica A4, abbinate e case a schiera sviluppate su 2 livelli
Al piano terra dedicato completamente alla zona giorno con grandi vetrate che danno su patio e giardino,
Le unità abitative rispondono alle più importanti e attuali esigenze delle famiglie: spazi confortevoli sia interni che esterni, ambienti molto luminosi ed ergonomici, tecnologie all’avanguardia, consumi ridotti, capitolati di qualità, dotazioni e finiture personalizzabili.
I tecnici hanno studiato gli impianti in funzione del risparmio energetico, in funzione della coibentazione termo-acustica, del trattamento dell’aria e della sicurezza. Tutto è stato pensato per chi avrà la fortuna di vivere in queste abitazioni: costi minimi sia per riscaldare che per raffrescare, ambienti sanificati, privacy e sicurezza. Le finiture e gli accessori, personalizzabili, sono di ottima qualità, i materiali di prima scelta, certificati.
DISPONIBILI:
Tre Case a Schiera
1 Abbinata con grandi giardini
2 Singole collegate solo da portico ma autonome in tutto
Prevista una zona parcheggio e magazzino dove vengono date a tutte le unità,1 magazzino con 2 posti auto scoperti adiacenti.
DOTAZIONI & FINITURE
Infissi in PVC color bianco con triplo vetrocamera
Scuri in multistrato
Portoncino blindato ad abbattimento acustico
Antenna TV satellitare con presa in zona giorno e camere
Impianto elettrico con luci emergenza giorno notte
Videocitofono Zanzariere.
Aria condizionata canalizzata zona notte con split zona giorno.
Allarme volumetrico e perimetrale.
Allacciamenti utenze energia e acqua con pre-posa contatori.
Porte interne bianche griffate
Pavimenti zona giorno finto listone gres di vari colori
Pavimenti camere in listoni legno prefinito.
Pavimenti garage in battuto di cemento grezzo
Rivestimenti bagni ceramica vari colori.
Garage con basculante in lamiera con predisposizione motore
Sanitari sospesi: Vaso e Bidet
PARTI COMUNI
Residence chiuso con accesso esclusivo ai condomini
Cancello carraio motorizzato comandato a distanza
Luci esterne di cortesia e di sicurezza a led
Videocitofono in ingresso condominiale
Costi per richieste extra capitolato calcolati a parte e aggiunti al prezzo di Vendita.
Potete contattare per informazioni Manuel tel. 345 6674969 codice LOC3
Contattaci
ABITARE REAL
Piazza G.Gambino 3/13
Preganziol (TV)
Telefono 0422523127
Cellulare 3456674969
info@abitarereal.com
Immobili simili
Ultimo aggiornamento 24-11-2025
















